nach oben

Der führende Marktplatz für das Schweizer Gastgewerbe.

Immobilien Immobilien
Logo Gastro-Express

Der führende Marktplatz für das Schweizer Gastgewerbe.

Offizieller Partner Logo GastroSuisse
Vermietung: Restaurants

Erstvermietung Restaurant im Zentrum von Domat/Ems

Objektbeschrieb

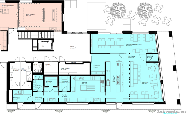
In der «Residenza Ensemen» entsteht ein modernes Restaurant, das allen Ansprüchen gerecht wird. Die Räumlichkeiten werden ab 1. April 2026 betriebsbereit sein und zeichnen sich durch die gemütliche Ausstattung aus.

Das Restaurant verfügt über 44 Sitzplätze. Durch eine Trennwand kann ein Saal abgetrennt werden und bietet so einen flexiblen Raum, der sich ideal für kleinere Veranstaltungen eignet. Direkt angrenzend befindet sich eine einladende Terrasse. Im Eingangsbereich findet sich eine grosse Garderobe. Die offene Bar schafft eine lebendige Atmosphäre und soll zu anregenden Gesprächen einladen.

Die Küche ist funktional und zeitgerecht ausgestattet und bietet beste Voraussetzungen für Ihre kulinarischen Kreationen. Eine separate Garderobe für das Personal sorgt für zusätzlichen Komfort und Ordnung. Die Küche umfasst ausserdem ein Kühllager, eine praktische Anlieferzone sowie ein Economat, der Ihnen ausreichend Stauraum für Ihre Vorräte bietet. Weiter ist auch für eine gut angeschlossene Entsorgung gesorgt.

Das Restaurant befindet sich ein einem Mehrfamilienhau, welches mehrere Alterswohnungen, Büroräumlichkeiten und das Kulturmuseum beheimatet. Ebenfalls befindet sich in der Nachbarschaft eine Kinderkrippe und diverse weitere Geschäfte.

Die Lage im Zentrum von Domat/Ems bietet eine ausgezeichnete Erreichbarkeit mit unmittelbarer Nähe zum Bahnhof und mit Anbindung an das Verkehrsnetz. Ebenfalls sind diverse öffentliche Parkplätze in Gehdistanz vorhanden.

Bedingungen

marktübliche Konditionen

Kontakt
Alfina Treuhand AG
Masanserstrasse 136
7000 Chur
Telefon: 081 286 77 37081 286 77 37
Ihre Kontaktperson für dieses Objekt:
Laura Sutter
Datum: Inseratedatum:
09.10.2025
Rubrik:
Immobilien > Angebote > Vermietung > Restaurants
Gebiet:
Graubünden
InserateNr.:
ibi28806